Familie Bacher - Mieming

Die Planungsaufgabe war, das sehr großzügig gestaltete Einfamilienwohnhaus neu zu gestalten, sodass künftig 2zwei Wohneinheiten und eine Einliegerwohnung entstehen sollten. Zudem musste noch die Zufahrt, die Parksituation und die Aussenanlagen geplant werden. 

Familie Singer - Sellrain

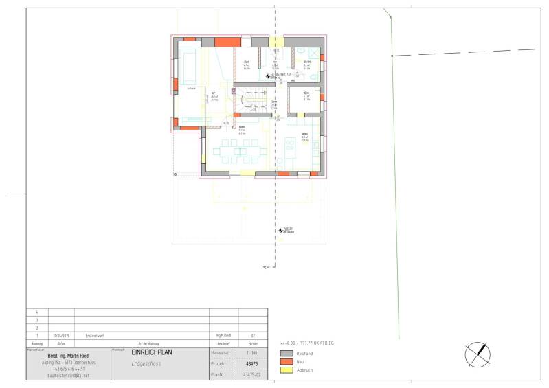
Die Planungsaufgabe war, den Altbestand weitestgehend zu nützen und in seiner Grundsubstanz zu erhalten. Es sollte ein modernes, auf die persönlichen Wünsche der Eigentümer abgestimmtes Haus entstehen. 

Fertigstellung 2020

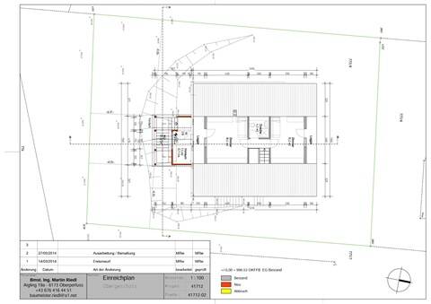
Familie Maurer - Umhausen

Die Planungsaufgabe war eine zusätzliche Wohneinheit zu generieren und eine kostengünstige Lösung zu finden für die gesamten Umbaumaßnahmen zu finden. Zudem sollte sich der notwendige Zubau in den Altbestand integrieren um das gesamte Erscheinungsbild des bestehenden Gebäudes zu erhalten.

Fertigstellung 2020

Familie Springer - Wattens

An dem Gebäude, welches in den Grundzügen bis 1952 zurückreicht, wurde immer wieder um-, bzw. zugbaut. Dazu die sehr strengen Vorgaben des Bebauungsplanes (BMD, BBD, max Höhe, usw.) machten die Planung wohl zu einer der komplexesten, welche ich je umsetzen durfte. 

Mit viel Einsatz und Wissen und auch Geduld konnte das Bauvorhaben entsprechend den Wünschen der Eigentümer bauverhandelt und fertiggestellt werden.

Familie Kugler - Götzens

Abbruch der bestehenden Garge und Neubau einer Tiefgarage mit darüber liegender Wohnung. Anbau an den Altbestand und Integration der bestehenden Infrastruktur (Treppe, Haustechnik).

Die extrem beengten Verhältnisse (Abstände, Höhen Bestand) machten die Planungsaufgabe extrem komplex. Durch die intelligente Verknüpfung von Altbestand (Treppe) und Zubau konnte eine tolle Lösung gefunden werden.

Familie Holzknecht - Leutasch

Auf einem nordseitig, sehr schmalen Streifen sollte ein Neubau einer großzügigen Garage und einer Wohneinheit entstehen. Anbau an den Altbestand bei gleichzeitiger Benützung der Zugangstreppe.

Familie Gruber-Singhartinger - Telfs

Abbruch und Neubau der bestehenden Garge. Zubau eines Technikraumes samt Keller und Erschließung mittels Freitreppe.

Familie Waldhart - Telfs

Neubau einer Gartenmauer und Zubau eines Lagerraumes samt Terrasse und Erschließung mittels Freitreppe.

Familie Prantner - Grinzens

Neugestaltung des Zugangsbereiches und einer Zugangstreppe um das oberste Geschoß zusätzlich zu erschließen.