Mehrparteienwohnhaus - Terfens

Die Auskragungen und das zudem punktuell gestützte Gebäude stellten eine enorme Herausforderung an die Berechnung dar. 

Betriebsgebäude - Abfalterer

Das sehr modern gestaltete Gebäude mit einer Tiefgarage befindet sich in der Grundwasser Schwankungszone und dementsprechend waren die Vorgaben (Richtlinie Weiße Wanne) einzhalten und die Dichtigkeit des Gebäudes durch geeignete statische Maßnahmen sicherzustellen. Zudem, der Architektur geschuldet, waren die Vorgaben im Innenraum an die Statik ziemlich herausfordernd.  

Container Sprengbahnen - Schlick 2000 AG

Es sollten die alten Container durch neue, größere und moderne Container für das Betriebspersonal der Schlick 2000 AG erneuert werden. Es sollte versucht werden die bestehenden Konstruktionen (Stahl und Fundamente) so weit als möglich zu verwenden und für die neuen Container zu adaptieren.

Betriebshalle - Kanal&Rohrreinigung Mayr

 

Statische Bemessung aller Unter- und Überzüge, inkl. aller Säulen, Wände, Ortbetondecken und Fundierungen. Es wurden mehrere Bodenschürfe zur Bestimmung der Bodenkennwerte durchgeführt. Dies ist maßgebend für die Dimensionierung der Fundierung.

Wohnhaus - Westreicher

Statische Bemessung aller Unter- und Überzüge in Abstimmung mit dem Lieferanten der Fertigteildecke

Wohnhaus - Dobesbeger

Statische Bemessung aller Unter- und Überzüge in Abstimmung mit dem Lieferanten der Fertigteildecke

Wohnhaus - Heisssenberger

Statische Bemessung aller Betonbauteile, Auskragungen, Unter- und Überzüge

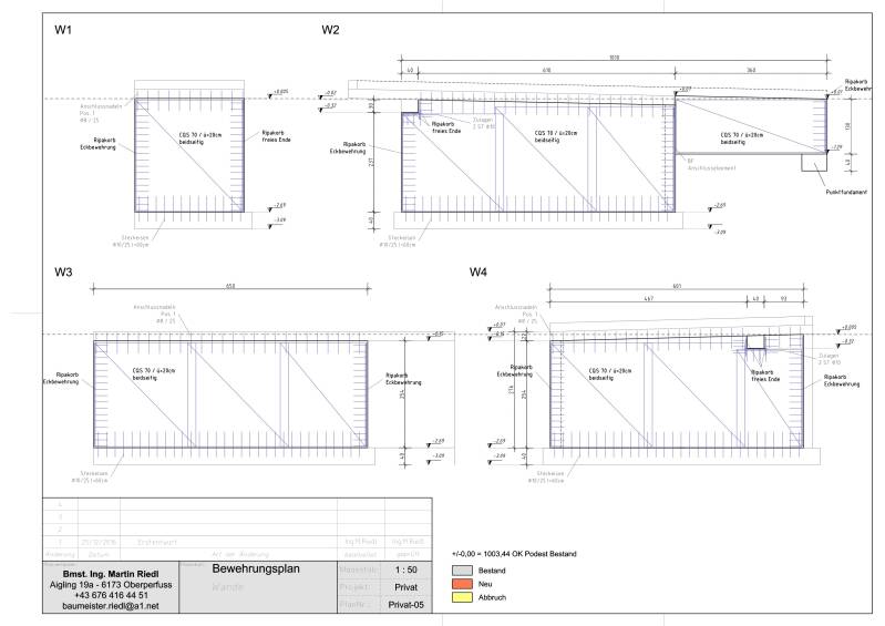
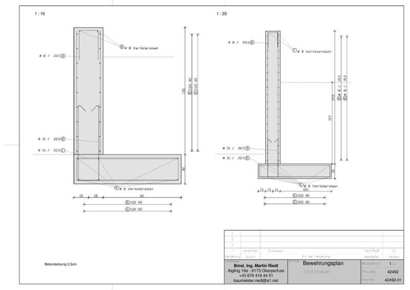
Stützmauer - Walch

Statische Bemessung der beiden Stützmauern. Die Lastannahmen wurden getrennt nach Nutzung der ober liegenden Anlagen (Parkplatz LKW tauglich sowie Garten) definiert.

Wohnhaus - Prugger

Statische Bemessung der gesamten Betonbauteile. Es wurden die Fundierungen, die Bodenplattte, die (Stahl)Säulen und Wände sowie die Übe- und Unterrzüge berechnet und statisch bemessen.

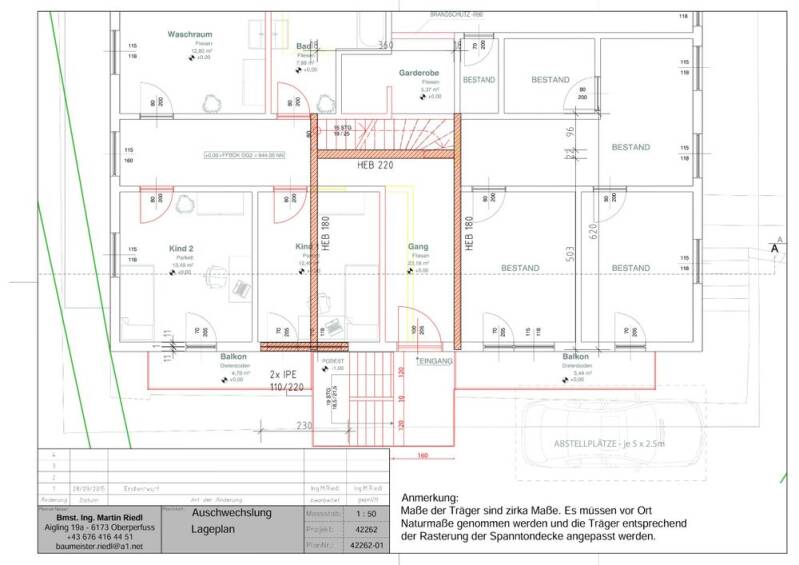
Treppenauswechslung Hohlkörperdecke - Zöttl

Um das Treppenauge der neu zu errichtenden Treppe ausschneiden zu können waren umfangreiche Erhebungsarbeiten notwendig. Es mussten die Belastungs- und Kennwerte der bestehenden Spanntondecke erhoben werden und ein genaues Aufmaß vor Ort genommen werden. 

Unterfangung - Wiedenhofer

Um die Standsicherheit der bestehenden Gebäude, während und nach den Baumaßnahmen zu gewährleisten, wurde eine Unterfangung mittels Betonschalsteinen bzw. Betonfüllungen gewählt. Die Arbeitstakte und die statische Bemessung wurden mit der ausführenden Firma (BP Bau GmbH) besprochen.

Parkdeck - Oberperfuss

Es mussten sowohl der Erddruck als auch die Lasten des Parkdecks berechnet und entsprechend dimensioniert werden.